Announcement bar information

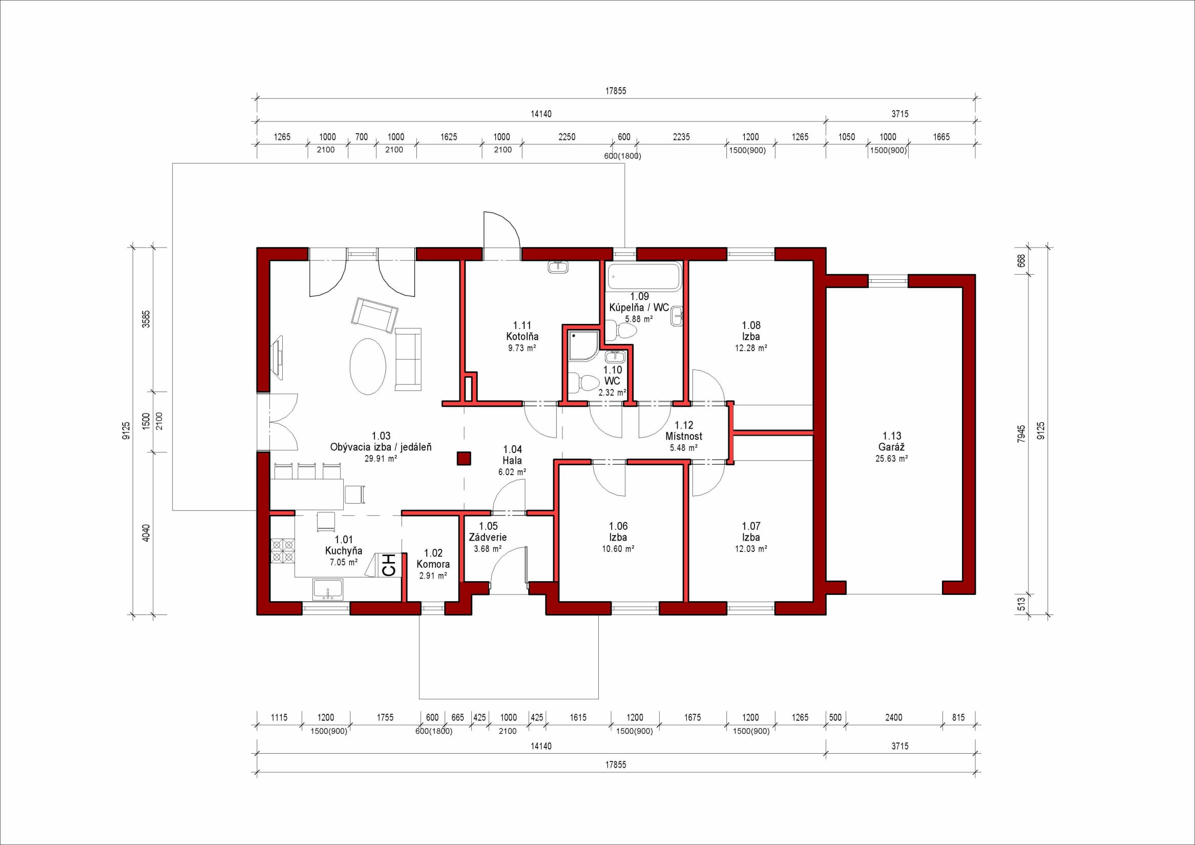
Projekt domu PD142

3 068 770 Kč

Cena výstavby

35 287 Kč

Cena projektu

158 m2

Zastavaná plocha

5

Počet pokojů

Popis

U tohoto projektu nabízíme MOŽNOST BEZPLATNÉ ZMĚNY DISPOZICE! Všechny projekty je možné dodat jako energetickou třídu A0 nebo A1. U každého projektu jsme sa snažili vymyslet tu nejlepší dispozici, jaká je vzhledem k vnějším rozměrům domu možná. I přesto je často nutné dispozici domu upravit s přihlédnutím k osazení domu na pozemek, preference klienta, nebo stavební systém. Nabízíme Vám proto možnost bezplatné změny dispozice každého našeho projektu tak, aby vyhovoval vašim potřebám. Změnou dispozice myslíme posuny nenosných příček, změnu umístění a velikosti oken, interiérových dveří a rozvodů instalací. Cena výstavby uvedená u projektu je za provedení kategorie A1 na klíč, bez interiérového vybavení a bez základů. Pro více informací a aktualizaci ceny nás prosím kontaktujte.

Parametre

Cena projektu domu

i
Projekt domu bez osazení na pozemku

35 287 Kč

Užitková plocha

126 m2

Zastavěná plocha

158 m2

Počet místností

5

Typ

Bungalov

Cena výstavby domu

i
Holodům bez základů

3 068 770 Kč

Šířka domu

9 m

Zabudovaná Garáž

1

Zrcadlový obraz

Ano

Kontakt

Hledat projekt

Cena výstavby domu
Cena výstavby domu - slider
0456 879 200
Maximální šířka domu
Maximální šířka domu - slider
5m36m
Zastavěná plocha
Zastavěná plocha - slider
28m2340m2

Posledné projekty

2 243 536 Kč

1 561 641 Kč

2 722 712 Kč

3 310 669 Kč

2 766 273 Kč